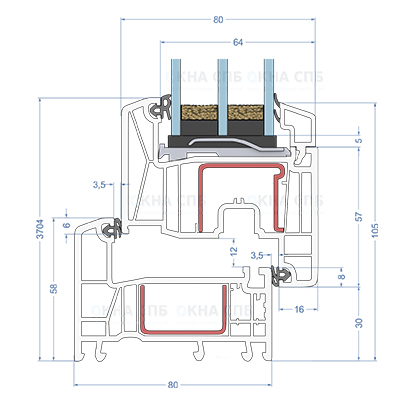
Пластиковые окна Rehau Intelio — это немецкий оконный премиум класс( выведен из складской программы у дилеров 2021 году).
Интелио — занимал шестое место по тепловым характеристикам в линейке профилей Рехау до 2021 года, уступая лишь Geneo, значительно превышая все российские требования и госты.















